Wurih Junior High School, Taichung City
Campus water environment challenges and opportunities
Wurih Junior High School is located in Wuri District, Taichung City, surrounded by a highly developed urban planning zone with a high ratio of hard pavement and scarce green space. For years, the school has faced issues with flooding in the plaza between classrooms after rainfall. The plaza, situated between two teaching buildings, is a heavily used area by teachers and students. However, the drainage system was only designed for the building structures, and since the plaza surface was made entirely of impermeable materials, rainwater could not drain smoothly. During the rainy season, water accumulation often reached depths of 10 to 15cm. To deal with sudden flooding, the school could only place bricks to temporarily elevate walkways for access, highlighting the need for improvements in spatial design and climate adaptability.
Creating an educational rain garden
To address the issue of flooding and enhance students' environmental awareness, this project transformed the campus' central area into a demonstrative rain garden. Through site planning and hydrological design, the previously impermeable plaza was turned into a multifunctional learning space capable of storing, retaining, draining, and purifying rainwater.
Renovation strategies
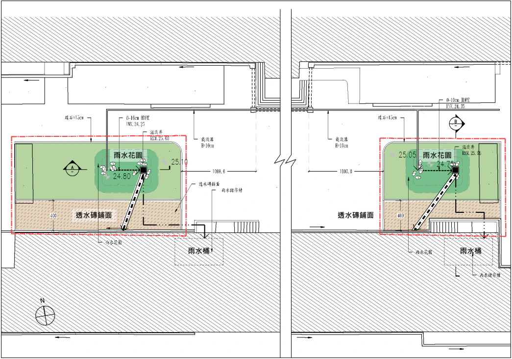
- 10-meter green belts were planned on both sides of the buildings to serve as rain gardens and planting zones.
- The plaza pavement was converted to permeable materials to reduce runoff.
- Interceptor ditches and underground drainage pipes were installed to direct surface runoff into underground storage tanks.
- Once the underground tank is full, excess water can overflow into the existing side gutter on the south side.
- Stored rainwater can be used for garden irrigation during dry periods.
Through these measures, water resources can be reused, and students can learn concepts of climate adaptation and sustainability directly from the environment.
Key outcomes: from waterlogged zone to educational garden
After the completion of the rain garden at Wurih Junior High School, the long-standing water accumulation issue between classrooms was resolved, and campus environment became more layered and lively.
The dull high-pressure brick plaza was transformed into a garden space where nature can be observed, waterflow can be guided, and ecology and education coexist, turning rainwater into a resource rather than a problem. Drought-tolerant and low-maintenance plants were selected to reduce upkeep demands and offer year-round observation opportunities for students. Additionally, the systematic introduction of underground storage facilities effectively implements the concept of "localized capture and reuse," enhancing the school’s sustainable value.



Environmental Monitoring Data
Last updated 2024-12-16 13:59:25

Last updated 2024-12-16 13:59:25
-
Environmental Humidity
58.4 %
-
Rainfall
0.0 mm
-
General Pavement
Temperature18.1 °C
-
Permeable Pavement
Temperature17.1 °C
-
Environmental Temperature
18.1 °C
-
Water depth in rain barrel on the east side
Water Depth0.69MEast Storag16.61884M³ -
Water depth in rain barrel on the west side
Water Depth0.69MWest Storage16.61884M³