Alt+C: Main content
:::
Font Size
:::
raingarden

Rain Garden: A Key Component of Sponge City Development

Rain gardens are an innovative approach combining natural ecology with urban design. Their core concept involves guiding, infiltrating, and storing rainwater to reduce urban flooding and improve the efficiency of water resource utilization. Typically situated in public spaces, residential communities, or schools, rain gardens utilize plants, soil, and landscape design to absorb rainwater, mimicking the natural water cycle. This creates green spaces that offer ecological, aesthetic, and functional benefits.

This concept aligns closely with the international initiative known as the "sponge city," which emphasizes cities’ ability to absorb, store, purify, and release rainwater, much like a sponge, so that they don’t have to rely so much on impermeable surfaces and rather use nature-based solutions to address climate change challenges. By installing rain gardens, not only can we enhance urban resilience, we can also reduce pollution caused by surface runoff, elevate the ecological value of urban spaces, and create more livable environments for residents.

The beauty of rain gardens lies not only in their functionality but also in their embodiment of respect for and coexistence with nature. Everyone can participate — whether by creating a small rain garden in their own backyard or joining community rain garden initiatives — and add greenery and hope to our cities. This change is accessible to all, representing the potential for small individual actions to collectively form a transformative movement.

Let us take action together by building rain gardens and welcoming a more sustainable future. This is not only an opportunity to transform our environment but also a promise to leave a greener world for future generations. We invite you to join this "green revolution" and become a creator of rain gardens, starting today, so that our cities can truly become "sponge cities"!

Highlights of the Taiwan-US Campus Rain Garden Promotion Campaign
Jhongfu Elementary School
Dazhi Elementary School
Sinjie Elementary School
Datong Elementary School
Highland Park Bartle School
Frances DeMasi School
Albrook School

Highlights from the Taiwan-US Campus Rain Garden Promotion Project

Through a collaboration between Taiwan’s Water Resources Agency and Rutgers University, this project promotes rain gardens as tools for climate adaptation and hands-on learning. Students from seven schools in Taiwan and the U.S. participated in the design and construction, fostering international exchange in climate education. These school-based rain gardens not only enhance local resilience but also serve as sustainable, self-developed teaching tools.

See more>multimedia 

Rain garden site cross-sectional diagram

The essence of rain garden design lies in effective rainwater management, integrating terrain and plant arrangements to achieve water collection, infiltration, and storage. The cross-sectional diagram illustrates the layered structure of a rain garden, including surface vegetation, permeable soil layers, and an underlying drainage system. This multi-layered design mimics natural ecosystems, effectively reducing surface runoff, lowering urban flood risks. Meanwhile, it also purifies rainwater, providing ecological benefits to the surrounding area. The diagram visually presents the processes of rainwater inflow, infiltration, and storage, offering a clear understanding of how rain gardens work. Whether in schools, communities, or public spaces, rain gardens can be adapted to local conditions and integrated with local features, creating spaces that blend functionality with landscape aesthetics.

Site Cross-Sectional Diagram

Demonstration site transformation

By comparing "before" site plans with the "after" on-site photos, we can clearly observe the transformative power of rain gardens. Previously, these locations may have had poor drainage, hardened surfaces, or limited greenery. Through the rain garden designs, the spaces have not only regained their ecological function but have also improved in visual appeal and usability.

Shinjie Elementary School, Taoyuan City

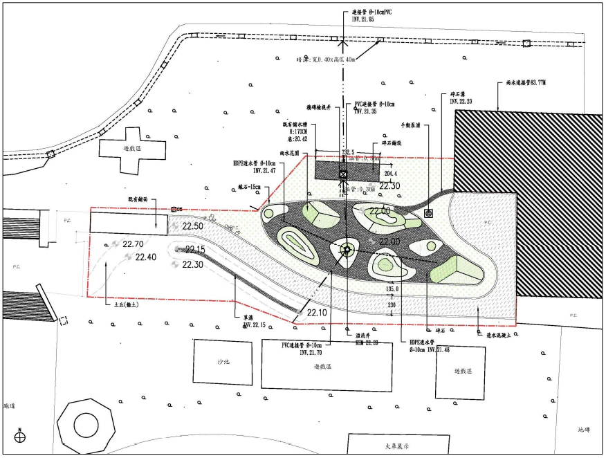
Shinjie Elementary School - Design layout
Design layout
Shinjie Elementary School - Post-construction photo
Post-construction photo

Jhong Fu Elementary School, Taoyuan City

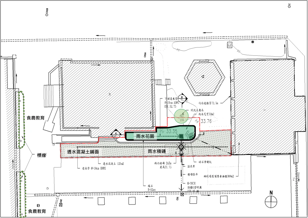
Jhong Fu Elementary School - Design layout
Design layout
Jhong Fu Elementary School - Post-construction photo
Post-construction photo

National Environmental Research Academy, Taoyuan City

National Environmental Research Academy - Design layout
Design layout
National Environmental Research Academy - Post-construction photo
Post-construction photo

Beiping Waldorf Experimental School, Hsinchu County

Beiping Waldorf Experimental School - Design layout
Design layout
Beiping Waldorf Experimental School - Post-construction photo
Post-construction photo

Xie Zi Pu Park, Hsinchu City

Xie Zi Pu Park - Design layout
Design layout
Xie Zi Pu Park - Post-construction photo
Post-construction photo

Nan-Liao Primary School, Hsinchu City

Nan-Liao Primary School - Design layout
Design layout
Nan-Liao Primary School - Post-construction photo
Post-construction photo

Dazhi Elementary School, Taichung City

Dazhi Elementary School - Design layout
Design layout
Dazhi Elementary School - Post-construction photo
Post-construction photo

Wurih Junior High School, Taichung City

Wurih Junior High School - Design layout
Design layout
Wurih Junior High School - Post-construction photo
Post-construction photo

Chung-Wen Elementary School, Chiayi City

Chung-Wen Elementary School - Design layout
Design layout
Chung-Wen Elementary School - Post-construction photo
Post-construction photo

Guinan Elementary School, Tainan City

Gueinan Elementary School - Design layout
Design layout
Gueinan Elementary School - Post-construction photo
Post-construction photo

Ta-Tung Elementary School, Kaohsiung City

Ta-Tung Elementary School - Design layout
Design layout
Ta-Tung Elementary School - Post-construction photo
Post-construction photo

Chung-Cheng Elementary School, Kaohsiung City

Chung-Cheng Elementary School - Design layout
Design layout
Chung-Cheng Elementary School - Post-construction photo
Post-construction photo

News

Go Top