頁面中央內容區塊[快捷鍵Alt+C]
:::
字級
:::
雨水花園

雨水花園:打造海綿城市的關鍵一環

雨水花園是一種結合自然生態與城市設計的創新手法,其核心概念是透過引導、滲透及儲存雨水,減少都市洪患,並提升水資源的利用效率。雨水花園通常設置於公共空間、住宅社區或學校等地點,運用植物、土壤和地形設計來吸收雨水,模仿自然的水循環,創造出一個具有生態、景觀與功能多重價值的綠色空間。

這項理念與國際間正在推動的「海綿城市」(Sponge City)目標不謀而合。海綿城市強調城市應具備像「海綿」一樣吸收、儲存、淨化和釋放雨水的能力,減少對硬化地面的依賴,並運用自然基礎設施(Nature-based Solutions)來應對氣候變遷的挑戰。透過雨水花園的設置,我們不僅能強化城市的韌性,還能減少地表逕流帶來的污染,提升城市空間的生態價值,讓人們的生活環境更加宜居。

雨水花園的美好不僅在於它的功能性,還體現了一種對自然的尊重與共存。每個人都可以參與其中,無論是在自家庭院打造一個小型的雨水花園,或是參與社區的雨水花園計畫,都能為我們的城市增添一份綠意與希望。這是一個人人可及的改變,一個從點滴中匯聚成大潮流的可能。

讓我們一起行動,透過雨水花園的建設,共同迎接更加永續的未來。這不僅是一個改變環境的機會,更是一份為子孫留下一片綠地的承諾。邀請您加入這場「綠色革命」,從現在開始,一同成為雨水花園的創造者,讓我們的城市成為真正的「海綿城市」!

臺美校園雨水花園推廣活動成果花絮
臺美校園雨水花園推廣活動成果花絮-臺灣桃園市忠福國小Jhongfu Elementary School
臺美校園雨水花園推廣活動成果花絮-臺灣臺中市大智國小Dazhi Elementary School
臺美校園雨水花園推廣活動成果花絮-臺灣桃園市新街國小Sinjie Elementary School
臺美校園雨水花園推廣活動成果花絮-臺灣高雄市大同國小Datong Elementary School
臺美校園雨水花園推廣活動成果花絮-美國紐澤西州Highland Park Bartle School
臺美校園雨水花園推廣活動成果花絮-美國紐澤西州Frances DeMasi School
臺美校園雨水花園推廣活動成果花絮-美國紐澤西州Albrook School

臺美校園雨水花園推廣活動成果花絮

透過本署與美國羅格斯大學的合作,這項計畫將雨水花園作為氣候變遷調適的重要設施,將校園打造成學習氣候韌性與環境保護的實踐場所。影片中展示了學生們積極參與設計與建設過程的熱情,並透過分享與交流,促進了國際間的氣候變遷教育合作。這不僅是一個具體的教具,也是學校自主發展的珍貴資源,讓學生在實踐中學習如何應對氣候挑戰。此次活動串連了臺灣與美國的7所學校師生,包含臺灣的桃園市新街國小、忠福國小、臺中市大智國小、高雄市大同國小,以及美國紐澤西州的The Albrook School、Bartle Elementary School和Frances S. DeMasi School,共同參與這場意義深遠的氣候教育交流。

看更多>多媒體教材 

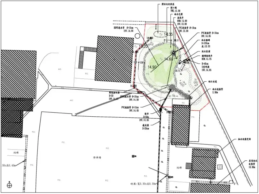
雨水花園基地剖面示意圖

雨水花園的設計核心在於有效管理雨水,結合地形與植栽配置,達到集水、滲透與儲存的功能。剖面圖展示了雨水花園的層次結構,包括地表植被、滲透土層與底層排水系統。這種多層次的設計模仿自然生態系統,能有效減少地表逕流,降低都市洪水風險,同時淨化雨水,為地區生態帶來更多益處。剖面示意圖呈現了雨水流入、滲透及儲存的過程,讓我們直觀理解其運作原理。無論是學校、社區,還是公共空間,雨水花園都能因地制宜地設計,融入當地特色,成為景觀與功能兼備的空間。

雨水花園基地剖面示意圖

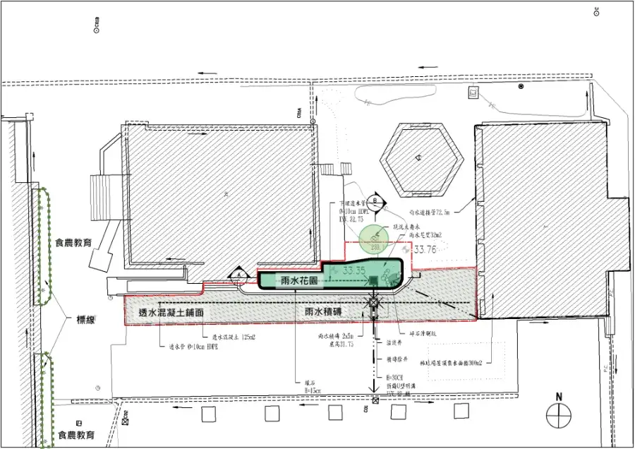
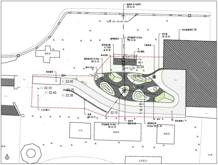
示範場址大改造

透過「改造前」的平面圖和「改造後」的實景照片,我們可以清楚看到雨水花園對場地的轉變效果。改造前的場址可能面臨排水不良、地表硬化或缺乏綠化的問題,而透過雨水花園的設計,場地不僅恢復了生態功能,還提升了美觀性與使用價值。

桃園市新街國小

桃園市新街國小設計平面圖
設計平面圖
桃園市新街國小 - 施工後照
施工後照

桃園市忠福國小

桃園市忠福國小 - 設計平面圖
設計平面圖
桃園市忠福國小 - 施工後照
施工後照

桃園市國家環境研究院

桃園市國家環境研究院 - 設計平面圖
設計平面圖
桃園市國家環境研究院 - 施工後照
施工後照

新竹縣北平華德福實驗學校

新竹縣北平華德福實驗學校 - 設計平面圖
設計平面圖
新竹縣北平華德福實驗學校 - 施工後照
施工後照

新竹市一品公園

新竹市一品公園 - 設計平面圖
設計平面圖
新竹市一品公園 - 施工後照
施工後照

新竹市蟹仔埔公園

新竹市蟹仔埔公園 - 設計平面圖
設計平面圖
新竹市蟹仔埔公園 - 施工後照
施工後照

新竹市康樂公園

新竹市康樂公園 - 設計平面圖
設計平面圖
新竹市康樂公園 - 施工後照
施工後照

新竹市南寮國小

新竹市南寮國小 - 設計平面圖
設計平面圖
新竹市南寮國小 - 施工後照
施工後照

臺中市大智國小

臺中市大智國小 - 設計平面圖
設計平面圖
臺中市大智國小 - 施工後照
施工後照

臺中市烏日國中

臺中市烏日國中 - 設計平面圖
設計平面圖
臺中市烏日國中 - 施工後照
施工後照

嘉義市崇文國小

嘉義市崇文國小 - 設計平面圖
設計平面圖
嘉義市崇文國小 - 施工後照
施工後照

臺南市歸南國小

臺南市歸南國小 - 設計平面圖
設計平面圖
臺南市歸南國小 - 施工後照
施工後照

高雄市大同國小

高雄市大同國小 - 設計平面圖
設計平面圖
高雄市大同國小 - 施工後照
施工後照

高雄市中正國小

高雄市中正國小 - 設計平面圖
設計平面圖
高雄市中正國小 - 施工後照
施工後照
返回頁面頂端