臺南市歸南國小
小學角落變身雨水花園迷宮
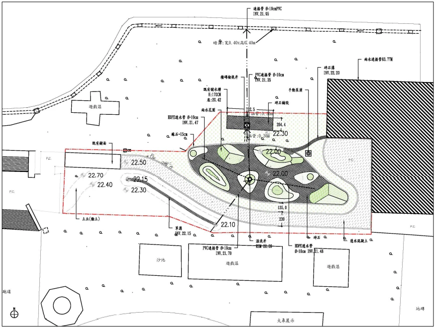
歸南國小位於臺南市歸仁區的高度開發地段,周邊為密集住宅區,校園總面積約2.97公頃,學生數約546人。過去,校園北側連接操場的低漥區常因地勢低、鋪面不透水、入滲差與排水系統不佳,在豪雨時造成積淹水,甚至出現20公分以上的積水深度,雖然103年曾設置HDPE透水管,但由於未設計清掃孔,且地面已夯實、難以入滲,導致系統功能受限,仍無法有效解決積水問題,透過本次改造,校園轉型為結合遊戲、學習與水資源管理的「迷宮雨水花園」,打造一個具教育示範與環境友善的雨水循環空間。
雨水管理新概念,迷宮花園引水再利用
為呼應場址特性與學生活動需求,本案以迷宮花園為設計主軸,創造一個融合綠意、遊憩與環境教育的多功能空間。主要通行動線以透水鋪面界定,結合南側草溝導引逕流,將遊戲區的雨水有效匯集至花園內部,花園內部設置八個複層次的植栽分區,鋪面以碎石鋪設,並配置迷宮路徑,提供學童穿梭探索的趣味性,水流在這些區域中滯留、下滲、儲存後,再經由導水管導入學校既有的地下貯水設施,待滿溢時排出至側溝,實現完整的雨水管理鏈。
此外,花園內設置一座手動泵浦,讓回收水可供灌溉或展示用途,兼具教育意涵,西側增設無障礙坡道串連整體動線,提升校園可及性與友善程度。
綠意迷宮 × 生態教育 × 空間再生
原本乾枯貧瘠的裸地,在本次工程後被轉化為綠意盎然的教學空間,保留原有喬木作為視覺主軸,強化空間層次感,透過透水鋪面、草溝與植栽配置的整合設計,有效改善排水,減緩熱島效應,也提供豐富的景觀與教學資源,整體雨水花園不僅解決積水,還導入雨水再利用觀念,讓學生從觀察、操作到體驗,學習雨水如何成為可用資源,迷宮式的配置也增添遊戲趣味,讓環境教育自然融入校園生活。
實施成果
雨後積水情形大幅改善,地表逕流可引導至下滲與貯留設施,減輕既有側溝負擔,新增的透水鋪面與植栽設計使原本枯燥的地景變得生動有趣,無障礙坡道與手動泵浦也讓學童有更多互動體驗,整體空間不僅更加安全,也成為結合教育、生態與美學的示範區域。



