嘉義市崇文國小
校園積水挑戰與微型示範解方
崇文國小位於嘉義市東區,地處高度都市開發區,周邊鋪面面積龐大、逕流量集中,校園總面積約3.8公頃,學生人數高達1,459人,是嘉義市重要的學校之一。
長期以來,幼兒園前方空地及其建物周圍是校園內主要的積水熱點,因排水溝容量有限,加上鄰近路面多為不透水鋪面,每逢強降雨時,大量地表逕流湧入排水系統,導致涼亭區周邊經常發生溢流情形,雨後易見積水滯留,影響幼兒師生活動安全,根據水利署淹水潛勢圖顯示,崇文國小及周邊區域為淹水潛勢區,特別是北側垂楊路及民族路一帶,可能出現0.3~0.5公尺的積水深度,顯示本校急需提升雨水調適與下滲能力。
雨水花園小尺度介入策略
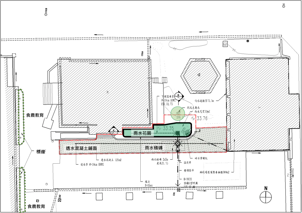
鑑於學校內部空間多數已有既定用途,場域改善的施作空間較為有限。因此本案採「小尺度、低擾動」的策略,將苗圃區微調配置、導入雨水花園系統,使既有空間升級為具備調蓄與滯洪功能的永續場域。
設計重點如下
- 雨水來源整合:導入室內棒球場屋頂雨水,透過截流管引導至雨水花園下滲。
- 多元設施整合:包含雨水花園、透水混凝土鋪面、地下貯水槽、草坪過濾緩衝區。
- 不影響原動線功能:保留跳遠場與維管車道功能,雨水花園設置於場邊並以綠帶隔離。
- 下埋式管線串聯:將花園溢流水導入維管車道下方地下儲水設施,降低道路逕流壓力。
整體配置在兼顧安全性與使用彈性的前提下,創造出一處具備雨水調適、生態教學與景觀美感的校園環境教育場域。
改造亮點,綠意融合水循環
崇文國小的雨水花園計畫雖然屬於小尺度的微型示範,但其成效卻格外顯著,透過簡潔有力的設計手法,原本為校園排水帶來負擔的角落空間,成功轉化為兼具雨水滯留、下滲與再利用機能的多功能景觀場域,完工後,校園在每次降雨過後積水狀況明顯改善,有效降低排水系統的壓力,提升整體排洪效率,建築與鋪面產生的逕流不再只是排放廢水,而是被引導進入花園與地下儲水設施中加以利用,達成雨水資源化的目標。
花園中所選用的植栽以低維護、耐旱為主,大幅減少後續維護頻率,並搭配透水鋪面,緩解過往硬舖面區域常見的熱島效應問題,整體設計不僅改善了空間機能,更結合教育意涵,讓學生得以實際觀察雨水從收集、滲透、儲存到再利用的全過程,在日常中親身體驗水資源循環的價值。



