臺中市大智國小
打造安全友善的校園雨水花園空間
大智國小位於臺中市東區都市計畫範圍內,周邊建築密度高,為典型高度開發區域的校園,校內學生人數逾六百人,操場北側為主要學生活動空間,然而該區長年受限於積水與地面高低落差,不僅影響活動品質,亦存在安全風險,過往校園內多株黑板樹因根系浮出造成鋪面隆起,導致地面凹凸不平,雨後易有積水及滑倒之虞;鄰近生態池周邊土壤裸露,遇大雨時易產生泥流,阻塞排水設施,影響整體排洪功能,經比對水利署淹水潛勢圖資,顯示該區淹水主要源自於地表高程與透水性不良所致,並非來自周邊外部溢流。



問題對策與空間優化
本次校園空間改造工程,聚焦解決三大核心課題:首先是針對校園廣場與操場周邊的雨天積水情形,透過調整地表鋪面材質與改善雨水下滲機制,有效減少地表逕流量;再者,面對因樹木浮根而導致鋪面隆起、地面高低不平的狀況,重新鋪設平整動線,確保學生行走安全,同時回應活動空間的多樣使用需求;最後,對於鄰近生態池裸露表土滲水性差、易造成泥濘與排水不順的問題,則透過設置雨水花園與地下貯留設施,導引雨水入滲與滯留,減緩土壤流失並提升整體排洪能力,整體規劃不僅解決了雨後積水與動線安全問題,更將校園轉化為一個兼具機能性與教育性、結合雨水管理與生態景觀的友善學習場域。
三層次整體解決方案
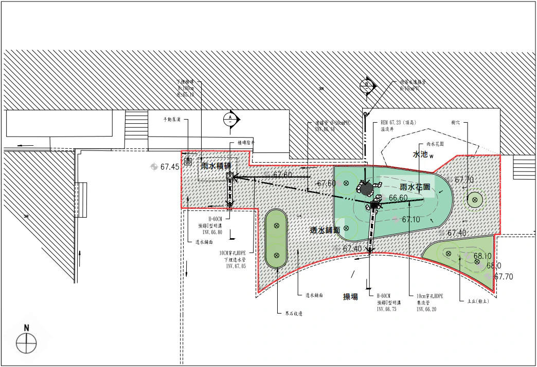
- 運導入透水鋪面:以透水工法施作主要動線鋪面,減少地表逕流,並重新規劃人行與活動區動線,提升空間使用效率與安全性。
- 設置雨水花園:將裸露土區整建為具有滯水與下滲功能的雨水花園,成為雨水緩衝與景觀教育兼具的場域,亦可提升整體綠覆率與美感。
- 建置雨水儲留系統:雨水自鋪面與雨水花園滲入地下貯留槽,裝滿後多餘水量將透過導水管溢流至既有側溝,整體水循環順暢。
此外,為回應校方關注之安全與環境問題,原本對鋪面造成破壞的黑板樹將全數移除,並改植本土喬木如光臘樹與樟樹,除減少浮根問題,也為校園增添蔭涼與生態價值。
校園綠色轉型成果
透過系統性的水文改善與鋪面優化,大智國小原本高風險的積水區域已轉化為兼具美感、機能與教育價值的開放綠空間,動線清晰,鋪面平整,綠意盎然,成為學生活動更安全、家長更放心的共享場域,本案除了解決積水問題,更藉由植栽更新與雨水花園的導入,提升校園整體的視覺美感與生態教育功能,實現雨水再利用與韌性校園的雙重願景。



